Prodej pozemku pro bydlení, Liberec - Liberec XXX-Vratislavice nad Nisou, Za Tratí, 1200 m2 (ID: 3834986)

Za Tratí, Liberec XXX-Vratislavice nad Nisou

2 500 000 Kč /za nemovitost HYPOTÉKA od 11 914 Kč /za měsíc

(Včetně právního servisu.)

Prémioví partneři v Liberci

Rekonstrukce

Úklidové služby

Informace k pozemku

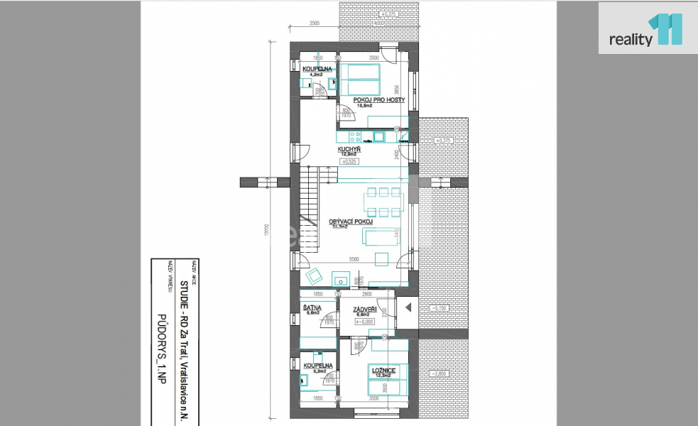
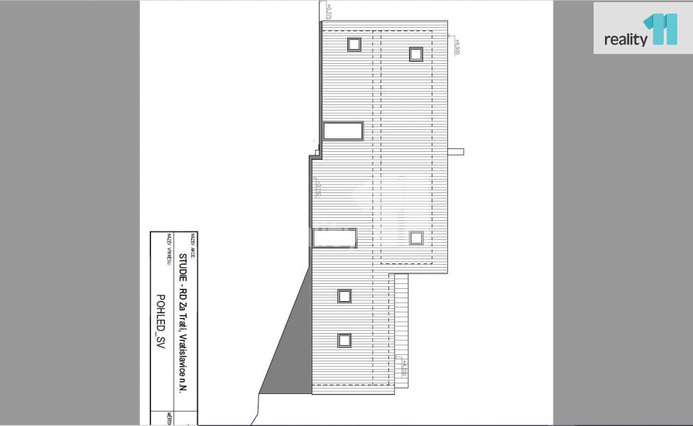
Prodej stavebního pozemku BO - bydlení všeobecné o velikosti 1200 m² pro stavbu rodinného domu se zastavitelnou plochou 10% dle ÚP. Pozemek v obci Liberec, katastrální území Vratislavice nad Nisou, ul. Za Tratí je svažitý se zarovnáním do rovných teras s krásným výhledem na západní stranu do údolí a v letním období celodenně prosluněným. Místem vás pozemek nadchne maximálním soukromím bez rušivých elementů sousedů. Budoucí vlastníci se mohou těšit na soukromí a unikátní umístění pozemku.
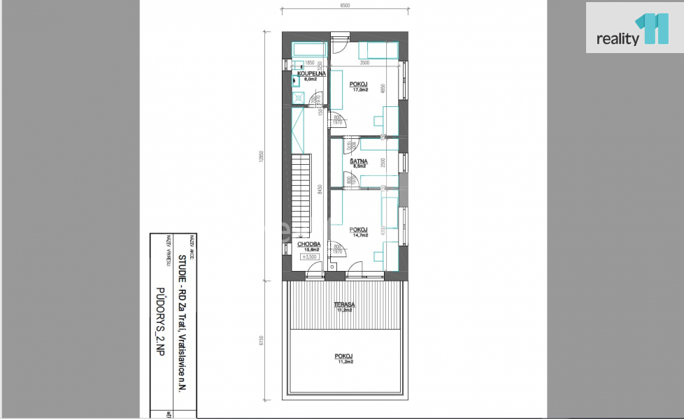
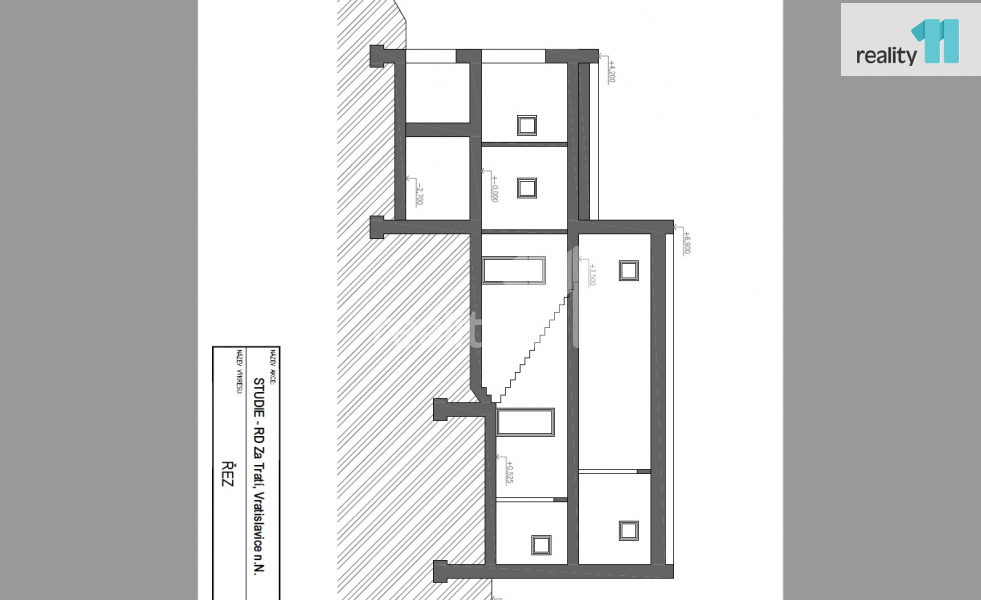
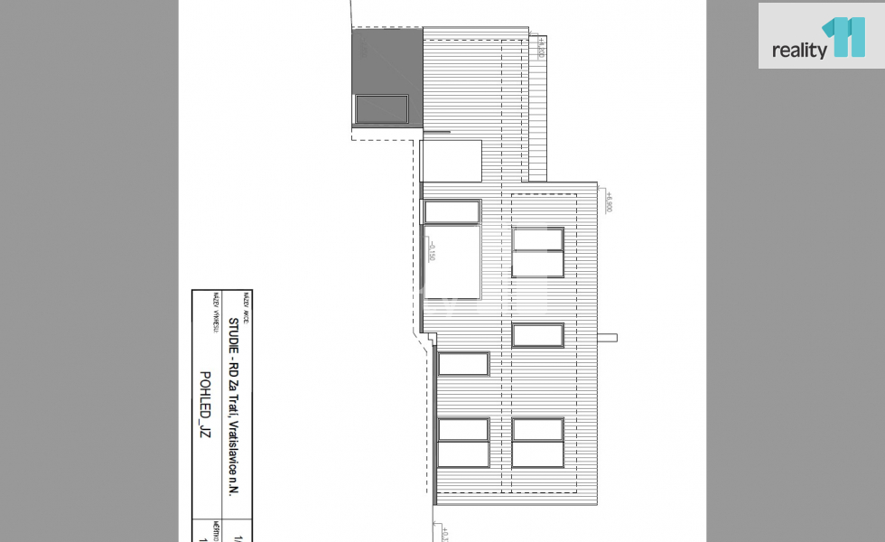
Na hranici pozemku elektřina, voda z řadu a plyn, kanalizace v ulici není, odpady řešit formou ČOV, jímka. Přístup k pozemku po obecní asfaltové komunikaci. Připravena studie pro stavbu moderního terasového rodinného domu s parkováním pro 2 vozy. Zájemce si však může připravit svou vizi nového bydlení. K pozemku je i přístup po nově asfaltové cestě ze strany od Rádla - Milíře. Tramvajová zastávka 2 minuty chůze od pozemku.
Více informací podá makléř Reality11 Liberecko. Ev. číslo: 27164.

Parametry pozemku

Cena
2 500 000 Kč /za nemovitost Spočítat hypotéku
Poznámka k ceně
Včetně právního servisu.
Aktualizováno
12. 11. 2025
Adresa
Za Tratí, Liberec XXX-Vratislavice nad Nisou
ID
27164
Plocha nemovitosti
1200 m2

Kontaktovat makléře

Máte zájem o tento pozemek?

Tímto, v souladu s nařízením Evropského parlamentu a Rady (EU) 2016/679, v platném znění, prohlašuji, že mi je alespoň 16 let a uděluji tak svůj souhlas se zpracováním zadaných údajů (jméno, telefon, e-mail, ip adresa) společnosti B3 Technology, s.r.o., IČ: 07330600, se sídlem Novostavby 126/23, 435 11 Lom (správce dat), za účelem předání dotazu z tohoto formuláře Vámi vybranému inzerentovi a zpětného kontaktování mé osoby. Osobní údaje bude správce zpracovávat manuálně i automaticky přímo prostřednictvím svých zaměstnanců. Informace předané tímto formulářem budou uloženy v databázi správce maximálně po dobu 10 let. Odvolání souhlasu s uložením a zpracováním poskytnutých dat lze e-mailem na info@videobydleni.cz. V případě podezření na neoprávněné použití Vámi poskytnutých údajů máte právo předat podnět k šetření Úřadu pro ochranu osobních údajů. Více informací
Chystáte se prodat nemovitost?
Pomůžeme Vám!

Inzerát si prohlédlo 20 lidí

Prodejce

Robert Táborský

Robert Táborský

Hlídací pes

Chcete dostávat emailem podobné nabídky prodeje pozemků pro bydlení v Liberci?

Podobné nemovitosti


Nevyhovuje Vám typ pozemku? Podívejte se na jiné kategorie pozemků.


Vybrané články z našeho blogu