Prodej chalupy, Kostelany - Újezdsko, 100 m2

Kostelany, Újezdsko

2 990 000 Kč /za nemovitost HYPOTÉKA od 14 249 Kč /za měsíc
Prémioví partneři v Kostelanech

Informace k domu

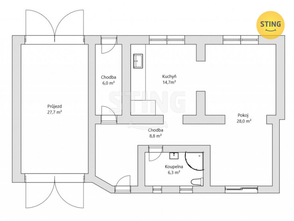
S výhradním souhlasem majitele nabízíme ke koupi rodinný dům v klidné části obce Kostelany - Újezdsko. Dům má v současné době k dispozici vstupní chodbu, obývací pokoj, jehož součástí je jídelna a spací část. Dále pak také koupelnu a WC. V půdním prostoru majitel zahájil rekonstrukci. Z obývacího pokoje (spací části) lze vejít na dvůr, rovněž tak ze vstupní chodby. Na dvoře je dostatek prostoru pro vybudování terasy či posezení dle vlastních potřeb. Dvorní část je oddělena hospodářskou budovou, do tvaru písmene L, kterou lze využít pro úschovu pracovního nářadí či jako dílnu. Za hospodářskou budovou je oplocená zahrada s ovocnými stromy. Další výhodou této nemovitosti je průjezdné návratí, lze si tak dovést stavební materiál do dvora. Do konce března 2026 nabízíme prostřednictvím našeho partnera úrokové sazby od 4,29 % p.a. Více informací Vám sdělí náš specialista na prohlídce.

Parametry domu

Cena
2 990 000 Kč /za nemovitost Spočítat hypotéku
Aktualizováno
25. 2. 2026
Adresa
Kostelany, Újezdsko
ID
132321
Stavba
Smíšená
Stav objektu
Velmi dobrý
Plocha užitná
100 m2
Druh objektu
Řadový
Lokalita objektu
Centrum obce
Plocha budovy
125 m2
Plocha nemovitosti
950 m2
Třída energetické náročnosti
G - Mimořádně nehospodárná

Kontaktovat makléře

Máte zájem o tento dům?

Tímto, v souladu s nařízením Evropského parlamentu a Rady (EU) 2016/679, v platném znění, prohlašuji, že mi je alespoň 16 let a uděluji tak svůj souhlas se zpracováním zadaných údajů (jméno, telefon, e-mail, ip adresa) společnosti B3 Technology, s.r.o., IČ: 07330600, se sídlem Novostavby 126/23, 435 11 Lom (správce dat), za účelem předání dotazu z tohoto formuláře Vámi vybranému inzerentovi a zpětného kontaktování mé osoby. Osobní údaje bude správce zpracovávat manuálně i automaticky přímo prostřednictvím svých zaměstnanců. Informace předané tímto formulářem budou uloženy v databázi správce maximálně po dobu 10 let. Odvolání souhlasu s uložením a zpracováním poskytnutých dat lze e-mailem na info@videobydleni.cz. V případě podezření na neoprávněné použití Vámi poskytnutých údajů máte právo předat podnět k šetření Úřadu pro ochranu osobních údajů. Více informací
Chystáte se prodat nemovitost?
Pomůžeme Vám!

Inzerát si prohlédlo 75 lidí

Prodejce

Petra Vlachynská

Petra Vlachynská

Hlídací pes

Chcete dostávat emailem podobné nabídky prodeje chalup v Kostelanech?

Top nabídky

Podobné nemovitosti


Nevyhovuje Vám typ domu? Podívejte se na jiné kategorie domů.


Vybrané články z našeho blogu