Prodej rodinného domu, Rataje nad Sázavou, 264 m2 (ID: 3936681)

Rataje nad Sázavou

7 990 000 Kč /za nemovitost HYPOTÉKA od 38 078 Kč /za měsíc
Prémioví partneři v Ratajích nad Sázavou

Informace k domu

Únik do přírody s možností podnikání – Rataje nad Sázavou

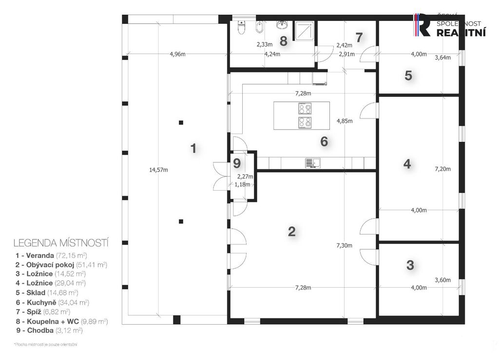
Klid venkova, komfort rodinného bydlení a prostor pro podnikání. To vše nabízí stylová dřevostavba na pozemku o 2 822 m² v malebné krajině u Rataj nad Sázavou. Ideální místo pro život i práci na jednom místě – ať už hledáte domov, ubytovací podnikání nebo prostor pro řemesla či kurzy.

Stylová dřevostavba 4+1
Hlavní budova s evidenčním číslem (lze financovat hypotékou) nabízí:

-Tři ložnice – dostatek místa pro rodinu, hosty i pracovní kout.
-Prostorný obývací pokoj s krbem – spojení domova a společenského prostoru.
-Prakticky řešená kuchyň – pro každodenní vaření i gurmánské kurzy.
-Krytá terasa – výhled do zeleně a ideální místo pro relax i setkání.
-Vlastní studna (61 m hluboká) – soběstačnost bez nutnosti napojení na obecní vodovod.


Pozemek a zázemí

-Oplocených 2 822 m² se zelení a soukromím.
-Dva vjezdy – snadné oddělení provozní a soukromé části.
-Dostatek prostoru pro parkování i další rozvoj (ubytování, dílna apod.).


Podnikání –
Pozemek je připraven k různorodému využití:

-Agroturistika, pobytové akce, dětské tábory
-Kurzy s ubytováním (např. řemesla, vaření)
-Tvořivé a ekologické aktivity


Plánovaná změna územního plánu rozšíří možnosti o drobnou výrobu, služby a občanskou vybavenost.

Možnosti využití

-Ateliér, foto/video studio, zkušebna
-Řemeslná dílna – keramika, dřevo, kovářství
-Přírodní výroba – svíčky, mýdla, byliny, sušení plodů
-Mikropražírna nebo čajovna s prodejem
-Servis/expedice – např. elektrokola + e-shop
-Kurzy – výroba sýrů, pečení, fermentace, rukodělné práce


Přednosti nemovitosti

-Maximální soukromí – přímé sousedství s lesem
-Krásné výhledy na okolní krajinu a údolí řeky Sázavy
-Možnost off-grid provozu díky studni a obnovitelným zdrojům
-Jižní orientace – ideální pro solární systémy
-Podpora formou dotací – ekologická řešení a energetická soběstačnost
-Aktivní volnočasové možnosti – cyklostezky, turistika, řeka, hrady


Shrnutí
Výjimečná nabídka pro ty, kdo hledají propojení přírody, klidu, bydlení i podnikání. Místo, kde můžete tvořit, růst a žít udržitelně. Rádi vám zašleme odkaz na web s dalšími informacemi nebo domluvíme prohlídku.

Parametry domu

Cena
7 990 000 Kč /za nemovitost Spočítat hypotéku
Aktualizováno
4. 11. 2025
Adresa
Rataje nad Sázavou
ID
N90610
Stavba
Smíšená
Stav objektu
Dobrý
Plocha užitná
264 m2
Typ objektu
Přízemní
Druh objektu
Samostatný
Vlastnictví
Osobní
Plocha nemovitosti
2822 m2
Třída energetické náročnosti
G - Mimořádně nehospodárná
Elektřina
400V
Odpad
Septik
Topení
Lokální tuhá paliva, Lokální elektrické
Komunikace
Asfaltová
Telekomunikace
Internet
Doprava
Vlak, Dálnice, Silnice, Autobus
Voda
Místní zdroj
Parkování

Kontaktovat makléře

Máte zájem o tento dům?

Tímto, v souladu s nařízením Evropského parlamentu a Rady (EU) 2016/679, v platném znění, prohlašuji, že mi je alespoň 16 let a uděluji tak svůj souhlas se zpracováním zadaných údajů (jméno, telefon, e-mail, ip adresa) společnosti B3 Technology, s.r.o., IČ: 07330600, se sídlem Novostavby 126/23, 435 11 Lom (správce dat), za účelem předání dotazu z tohoto formuláře Vámi vybranému inzerentovi a zpětného kontaktování mé osoby. Osobní údaje bude správce zpracovávat manuálně i automaticky přímo prostřednictvím svých zaměstnanců. Informace předané tímto formulářem budou uloženy v databázi správce maximálně po dobu 10 let. Odvolání souhlasu s uložením a zpracováním poskytnutých dat lze e-mailem na info@videobydleni.cz. V případě podezření na neoprávněné použití Vámi poskytnutých údajů máte právo předat podnět k šetření Úřadu pro ochranu osobních údajů. Více informací
Chystáte se prodat nemovitost?
Pomůžeme Vám!

Inzerát si prohlédlo 79 lidí

Prodejce

Michal Šebor

Michal Šebor

Hlídací pes

Chcete dostávat emailem podobné nabídky prodeje rodinných domů v Ratajích nad Sázavou?

Podobné nemovitosti


Nevyhovuje Vám typ domu? Podívejte se na jiné kategorie domů.


Vybrané články z našeho blogu