Pronájem bytu 3+1, Praha - Nové Město, Štěpánská, 89 m2 (ID: 4036945)

Štěpánská, Nové Město - Praha 1

28 000 Kč /za měsíc Získejte výhodnou HYPOTÉKU

(+4.300,- domovní služby +1.300,-Kč/os. +elektřina na nájemce (celkem cca 35.000,-Kč))

Prémioví partneři v Praze 1

Stěhovací služby

Výkup a prodej starého nábytku

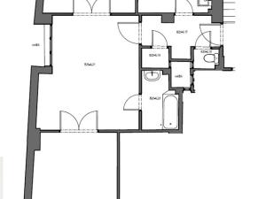
Informace k bytu

Nabízíme k dlouhodobému pronájmu byt 3+1 o velikosti 89m2 se dvěma balkony ve 4. patře (5/6NP) cihlového domu jen pár kroků od Václavského náměstí v ulici Štěpánská. Byt je nabízen nezařízený, je zde pouze kuchyňská linka s elektrickou troubou, varnou deskou, lednice s mrazákem. Byt je po rekonstrukci, má dálkové vytápění, koupelnu s vanou a pračkou. WC je samostatné, v bytě dále menší komora.
Volný k nastěhování ihned, o více informací a prohlídky volejte kdykoli.

Parametry bytu

Cena
28 000 Kč /za měsíc
Poznámka k ceně
+4.300,- domovní služby +1.300,-Kč/os. +elektřina na nájemce (celkem cca 35.000,-Kč)
Aktualizováno
28. 10. 2025
Adresa
Štěpánská, Nové Město - Praha 1
ID
N2493
Stavba
Cihlová
Stav objektu
Velmi dobrý
Plocha užitná
89 m2
Patro
5. z 6
Typ objektu
Patrový
Vlastnictví
Osobní
Podlahová plocha
89 m2
Elektřina
230V
Topení
Ústřední dálkové
Telekomunikace
Telefon, Internet
Doprava
MHD
Voda
Dálkový vodovod
Balkon
Výtah

Kontaktovat makléře

Realitní kancelář

Logo Reality NEBE

Reality NEBE

Choceradská 3216/42, Praha

Chystáte se prodat nemovitost?
Pomůžeme Vám!

Máte zájem o tento byt?

Tímto, v souladu s nařízením Evropského parlamentu a Rady (EU) 2016/679, v platném znění, prohlašuji, že mi je alespoň 16 let a uděluji tak svůj souhlas se zpracováním zadaných údajů (jméno, telefon, e-mail, ip adresa) společnosti B3 Technology, s.r.o., IČ: 07330600, se sídlem Novostavby 126/23, 435 11 Lom (správce dat), za účelem předání dotazu z tohoto formuláře Vámi vybranému inzerentovi a zpětného kontaktování mé osoby. Osobní údaje bude správce zpracovávat manuálně i automaticky přímo prostřednictvím svých zaměstnanců. Informace předané tímto formulářem budou uloženy v databázi správce maximálně po dobu 10 let. Odvolání souhlasu s uložením a zpracováním poskytnutých dat lze e-mailem na info@videobydleni.cz. V případě podezření na neoprávněné použití Vámi poskytnutých údajů máte právo předat podnět k šetření Úřadu pro ochranu osobních údajů. Více informací
Chystáte se prodat nemovitost?
Pomůžeme Vám!

Inzerát si prohlédlo 6 lidí

Prodejce

Bc. Petr Sváček

Bc. Petr Sváček

Hlídací pes

Chcete dostávat emailem podobné nabídky pronájmu bytů 3+1 v Praze 1?

Podobné nemovitosti


Nevyhovuje Vám typ bytu? Podívejte se na jiné kategorie bytů.


Vybrané články z našeho blogu