Prodej rodinného domu, Mnichov - Rájov, 97 m2 (ID: 4079911)

Mnichov, Rájov

5 690 000 Kč /za nemovitost HYPOTÉKA od 27 117 Kč /za měsíc
Prémioví partneři v Mnichově

Informace k domu

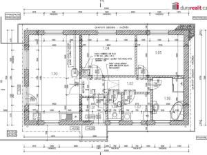
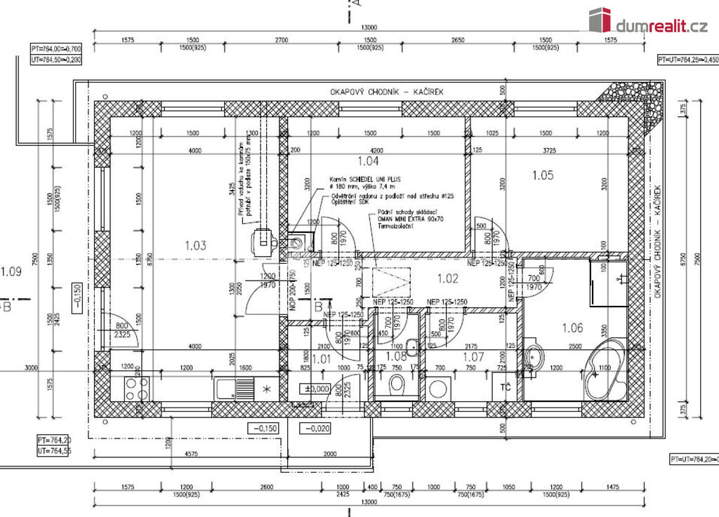
Dumrealit.cz Vám zprostředkuje koupi novostavby rodinného domu 3+kk v Rájově u Mariánských Lázních. Dům se nachází na rovinatém pozemku o rozloze 816 m² u silnice s bezproblémovým přístupem. Dům o rozloze 97 m² nabízí dispozici 3+kk, je zde prostorný obývací pokoj spojený s kuchyňským koutem a francouzským oknem, z kterého je výstup na budoucí terasu, dále jsou zde dva samostatné pokoje, technická místnost, koupelna a samostatná toaleta. Dům z ytongových tvárnic má hotový krov s plechovou střechou ve tvaru tašek. V domě je připravena a rozvedena elektroinstalace, vodoinstalace, plastová okna, na podlahách je kombinace dlažby a vinylu. V domě jsou již hotové omítky, v prostorné koupelně s oknem je k dispozici vana i sprcha. Vytápění zajišťuje již dodané tepelné čerpadlo, v celém domě je podlahové vytápění, ohřev teplé vody zajišťuje bojler. Zdrojem vody je studna, dům je napojen na kanalizaci. Dům se prodává bez kuchyňské linky (je zde příprava). Součástí ceny není oplocení. Dokončená je venkovní bledě modrá omítka včetně zateplení. Obec Rájov se nachází v bezprostřední blízkosti Mariánských Lázní, nedaleko obce Zádub-Závišín, kde je vyhledávané golfové hřiště. Za domem je krásná cyklotrasa vedoucí přes Nimrod, Prameny, Polom, Kladskou a dále do Kynžvartu. V Mariánských Lázních je veškerá občanská vybavenost včetně úřadů, bank, restaurací, obchodů, jsou zde supermarkety LIDL, PENNY, TESCO, Kaufland, BILLA, DM, Planeo elektro, JYSK, super ZOO, TAKKO, KIK, Deichmann. Mariánské Lázně jsou úžasné místo pro život i odpočinek, jsou prošpikované sítí turistických, cyklistických a běžkařských tras. Sportovcům je k dispozici plavecký bazén, sportovní areál Viktorka, plochá dráha, zimní stadion pro bruslaře, lyžařská sjezdovka s lanovkou, jezdecká škola, tenisové kurty, v létě je v provozu koupaliště Lido s písečnou pláží. Úžasné městské parky nabízí krásná zákoutí: Kolonádu se zpívající fontánou a přilehlý labutí park, Ferdinandův pramen, Lesní pramen, Rudolfův pramen, Medvědí pramen, Geologický park, obůrku Hvozd s daňky a jeleny. Mariánské Lázně se roku 2021 dostaly na seznam světového kulturního dědictví UNESCO, skýtají klid lázeňského města se zdravou vodou a čistým ovzduším. Mariánské Lázně se nacházejí v blízkosti německých hranic, tedy je vhodné pro ty, kteří tam hledají pracovní uplatnění. Cena zahrnuje provizi RK a veškerý právní servis. V případě potřeby Vám rádi doporučíme naše prověřené finanční specialisty. Ev. číslo: 652885.

Parametry domu

Cena
5 690 000 Kč /za nemovitost Spočítat hypotéku
Aktualizováno
22. 11. 2025
Adresa
Mnichov, Rájov
ID
653499
Stavba
Cihlová
Stav objektu
Velmi dobrý
Plocha užitná
97 m2
Typ objektu
Přízemní
Druh objektu
Samostatný
Plocha budovy
120 m2
Podlahová plocha
97 m2
Plocha nemovitosti
816 m2
Třída energetické náročnosti
B - Velmi úsporná
Terasa
Parkování

Kontaktovat makléře

Máte zájem o tento dům?

Tímto, v souladu s nařízením Evropského parlamentu a Rady (EU) 2016/679, v platném znění, prohlašuji, že mi je alespoň 16 let a uděluji tak svůj souhlas se zpracováním zadaných údajů (jméno, telefon, e-mail, ip adresa) společnosti B3 Technology, s.r.o., IČ: 07330600, se sídlem Novostavby 126/23, 435 11 Lom (správce dat), za účelem předání dotazu z tohoto formuláře Vámi vybranému inzerentovi a zpětného kontaktování mé osoby. Osobní údaje bude správce zpracovávat manuálně i automaticky přímo prostřednictvím svých zaměstnanců. Informace předané tímto formulářem budou uloženy v databázi správce maximálně po dobu 10 let. Odvolání souhlasu s uložením a zpracováním poskytnutých dat lze e-mailem na info@videobydleni.cz. V případě podezření na neoprávněné použití Vámi poskytnutých údajů máte právo předat podnět k šetření Úřadu pro ochranu osobních údajů. Více informací
Chystáte se prodat nemovitost?
Pomůžeme Vám!

Inzerát si prohlédlo 15 lidí

Prodejce

Edita Kostrounová

Edita Kostrounová

Hlídací pes

Chcete dostávat emailem podobné nabídky prodeje rodinných domů v Mnichově (okr. Cheb)?

Podobné nemovitosti


Nevyhovuje Vám typ domu? Podívejte se na jiné kategorie domů.


Vybrané články z našeho blogu