Prodej rodinného domu, Stříbrná Skalice - Hradové Střimelice, 220 m2

Stříbrná Skalice, Hradové Střimelice

14 000 000 Kč /za nemovitost HYPOTÉKA od 66 720 Kč /za měsíc
Prémioví partneři v Stříbrné Skalici

Informace k domu

Nabízíme ke koupi rodinný dům o dispozici 4+kk a 2+kk s užitnou plochou 220 m², který se nachází na rozlehlém a slunném pozemku o velikosti 2 215 m² v malebné lokalitě Hradové Střímelice, část obce Stříbrná Skalice (okres Praha-východ).
Dům byl budován postupně s důrazem na kvalitu a promyšlené řešení detailů. Je postaven z cihelného zdiva Heluz Supertherm 36,5 cm s tepelnou izolací 14 cm polystyrenu a osazen eurookny s trojskly.
Je připraven k dokončení podle představ nového majitele – nabízí tak možnost doladit interiér přesně podle vlastního vkusu.
Dispozice:
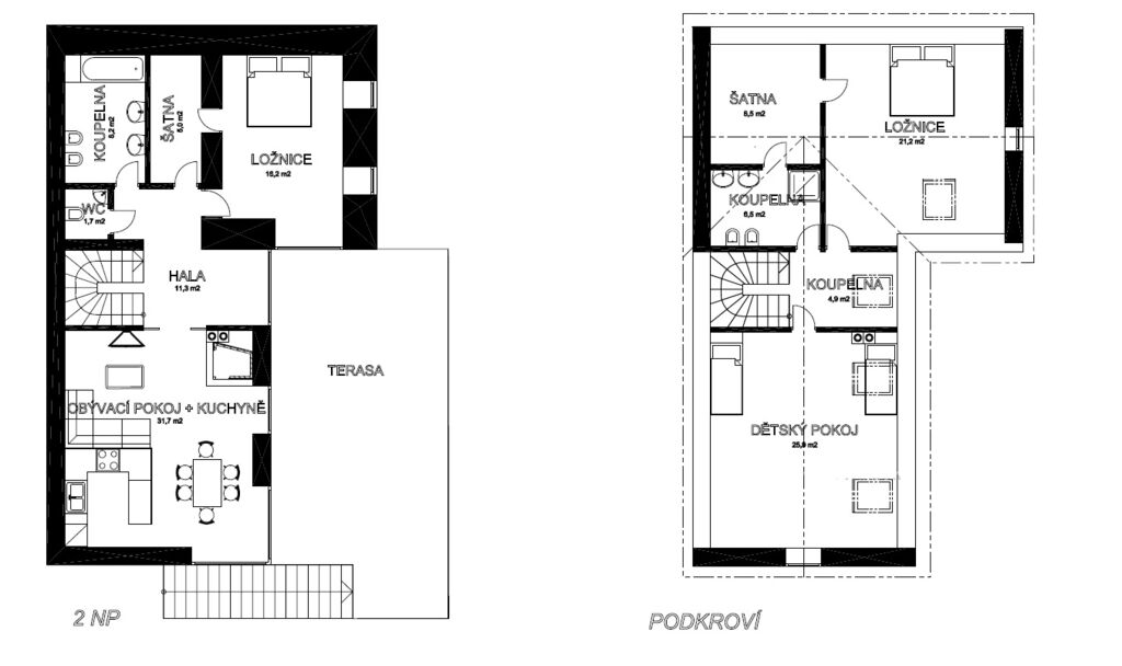
1. podlaží (přízemí) – samostatná jednotka 2+kk, technické zázemí, sklad/sklep 30 m² (plocha sklepa není započítána do celkové užitné plochy)
2. podlaží – počítá se s obývacím pokojem s kuchyňským koutem (31,7 m²), ložnicí (16,2 m²), koupelnou, samostatným WC a vstupem na terasu
3. podlaží (podkroví) – počítá se se dvěma ložnicemi (25,9 m² a 21,2 m²), šatnou (8,5 m²) a koupelnou
Vytápění zajišťuje elektrokotel.
V 1. podlaží je instalováno podlahové topení, s nímž se počítá i ve 2. podlaží; v podkroví je příprava pro radiátory.
Dům je napojen na vodovod i vlastní studnu, odpad bude řešen čističkou odpadních vod (ČOV).
Další výhody:
Velkorysý pozemek 2 215 m² s dostatkem prostoru pro zahradu, bazén nebo relaxační zónu
Klidná část obce s minimálním provozem a dostatkem soukromí
Veškerá občanská vybavenost v nedaleké Stříbrné Skalici a Ondřejově (škola, školka, obchody, restaurace, služby)
Dobrá dostupnost do Prahy – autem či autobusem do Strančic, odkud vlakem na hlavní nádraží Praha cca 34 minut
Shrnutí:
Dům, který nabízí prostor, klid a možnost dotvořit si domov podle vlastních představ.
Ideální pro ty, kdo hledají kvalitní rodinné bydlení v přírodě, přitom v pohodlné dojezdové vzdálenosti od Prahy.

Parametry domu

Cena
14 000 000 Kč /za nemovitost Spočítat hypotéku
Aktualizováno
31. 10. 2025
Adresa
Stříbrná Skalice, Hradové Střimelice
ID
420250482
Stavba
Cihlová
Stav objektu
Ve výstavbě
Plocha užitná
220 m2
Vybaveno
Ne
Typ objektu
Patrový
Druh objektu
Samostatný
Lokalita objektu
Klidná část obce
Plocha budovy
100 m2
Podlahová plocha
242 m2
Plocha nemovitosti
2215 m2
Odpad
ČOV pro celý objekt
Komunikace
Asfaltová
Voda
Dálkový vodovod, Studna
Převod do OV

Kontaktovat makléře

Máte zájem o tento dům?

Tímto, v souladu s nařízením Evropského parlamentu a Rady (EU) 2016/679, v platném znění, prohlašuji, že mi je alespoň 16 let a uděluji tak svůj souhlas se zpracováním zadaných údajů (jméno, telefon, e-mail, ip adresa) společnosti B3 Technology, s.r.o., IČ: 07330600, se sídlem Novostavby 126/23, 435 11 Lom (správce dat), za účelem předání dotazu z tohoto formuláře Vámi vybranému inzerentovi a zpětného kontaktování mé osoby. Osobní údaje bude správce zpracovávat manuálně i automaticky přímo prostřednictvím svých zaměstnanců. Informace předané tímto formulářem budou uloženy v databázi správce maximálně po dobu 10 let. Odvolání souhlasu s uložením a zpracováním poskytnutých dat lze e-mailem na info@videobydleni.cz. V případě podezření na neoprávněné použití Vámi poskytnutých údajů máte právo předat podnět k šetření Úřadu pro ochranu osobních údajů. Více informací
Chystáte se prodat nemovitost?
Pomůžeme Vám!

Inzerát si prohlédlo 23 lidí

Prodejce

Renata Cajthamlová

Renata Cajthamlová

Hlídací pes

Chcete dostávat emailem podobné nabídky prodeje rodinných domů v Stříbrné Skalici?

Podobné nemovitosti


Nevyhovuje Vám typ domu? Podívejte se na jiné kategorie domů.


Vybrané články z našeho blogu