Prodej bytu 3+kk, Brodek u Konice, 60 m2

Brodek u Konice

2 200 000 Kč /za nemovitost HYPOTÉKA od 10 485 Kč /za měsíc

(včetně poplatků, včetně provize, včetně právního servisu)

Prémioví partneři v Brodku u Konice

Informace k bytu

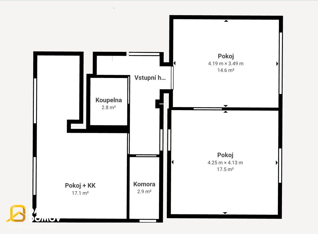
Světlý byt 3+kk, 60 m² s balkónem – ideální k rekonstrukci podle vlastních představ

Nabízíme ke koupi světlý byt 3+kk o ploše 60 m² s balkónem, umístěný v 1. patře menšího bytového domu se čtyřmi jednotkami. Byt je v původním, udržovaném stavu a je ideální pro ty, kteří hledají možnost vytvořit si domov přesně podle svých představ – je určen ke kompletní rekonstrukci.

Byt je v osobním vlastnictví a jeho součástí jsou také dva prostorné sklepy, které poskytují dostatek úložného prostoru. K bytu je navíc zajištěno parkování pro dvě vozidla před domem, což zaručuje komfortní a bezproblémové parkování i pro vícečlennou domácnost. V současnosti je byt vytápěný krbovými kamny, avšak do bytu je zaveden plyn a k dispozici je původní plynový kotel, který je možné znovu zprovoznit podle preferencí nového majitele.

Dům se nachází v klidné části obce, na jejím okraji, v prostředí s dostatkem zeleně a minimálním provozem. K domu je možné využívat zahrádku, která nabízí příjemné posezení nebo prostor pro pěstování.

Tento byt představuje skvělou příležitost pro vlastní bydlení i investici – vhodný pro rodinu, pár či jednotlivce, kteří hledají klid, prostor a možnost přizpůsobit si interiér podle svého vkusu.

Zavolejte si na prohlídku, těším se na Vás, Silvie Skotková & dáme domov.

Parametry bytu

Cena
2 200 000 Kč /za nemovitost Spočítat hypotéku
Poznámka k ceně
včetně poplatků, včetně provize, včetně právního servisu
Aktualizováno
19. 11. 2025
Adresa
Brodek u Konice
ID
14342
Stavba
Cihlová
Stav objektu
Dobrý
Plocha užitná
60 m2
Patro
2. z 2
Vybaveno
Ne
Druh objektu
Samostatný
Lokalita objektu
Okraj obce
Vlastnictví
Osobní
Podlahová plocha
83 m2
Třída energetické náročnosti
G - Mimořádně nehospodárná
Odpad
Veřejná kanalizace
Topení
Lokální tuhá paliva, Ústřední plynové
Voda
Místní zdroj
Balkon
Parkování

Kontaktovat makléře

Máte zájem o tento byt?

Tímto, v souladu s nařízením Evropského parlamentu a Rady (EU) 2016/679, v platném znění, prohlašuji, že mi je alespoň 16 let a uděluji tak svůj souhlas se zpracováním zadaných údajů (jméno, telefon, e-mail, ip adresa) společnosti B3 Technology, s.r.o., IČ: 07330600, se sídlem Novostavby 126/23, 435 11 Lom (správce dat), za účelem předání dotazu z tohoto formuláře Vámi vybranému inzerentovi a zpětného kontaktování mé osoby. Osobní údaje bude správce zpracovávat manuálně i automaticky přímo prostřednictvím svých zaměstnanců. Informace předané tímto formulářem budou uloženy v databázi správce maximálně po dobu 10 let. Odvolání souhlasu s uložením a zpracováním poskytnutých dat lze e-mailem na info@videobydleni.cz. V případě podezření na neoprávněné použití Vámi poskytnutých údajů máte právo předat podnět k šetření Úřadu pro ochranu osobních údajů. Více informací
Chystáte se prodat nemovitost?
Pomůžeme Vám!

Inzerát si prohlédlo 10 lidí

Prodejce

Silvie Skotková

Silvie Skotková

Hlídací pes

Chcete dostávat emailem podobné nabídky prodeje bytů 3+kk v Brodku u Konice?

Podobné nemovitosti


Nevyhovuje Vám typ bytu? Podívejte se na jiné kategorie bytů.


Vybrané články z našeho blogu