Pronájem bytu 3+1, Praha - Braník, Na Mlejnku, 70 m2

Na Mlejnku, Praha 4

31 700 Kč /za měsíc Získejte výhodnou HYPOTÉKU
Prémioví partneři v Praze 4

Stěhovací služby

Výkup a prodej starého nábytku

Informace k bytu

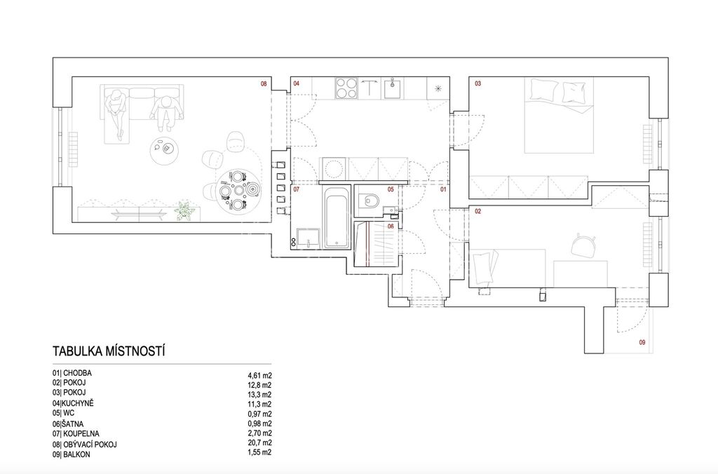
Nabízíme k pronájmu nádherně zrekonstruovaný rodinný byt 3+1 o výměře 70 m² v oblíbené a klidné části Prahy 4 – Braník, ul. Na Mlejnku 10. Byt se nachází v komorním činžovním domě a je ideální zejména pro rodinu, která ocení klid, soukromí a skvělé okolí pro děti i aktivní životní styl.
Interiér prošel kompletní renovací – majitel si dal záležet na detailech. Na podlahách jsou krásné parkety, nová kuchyňská linka nabízí plno úložného prostoru, koupelna s vanou je designově sladěná a WC je oddělené. Obě ložnice jsou orientované do vnitrobloku (jedna má balkon, druhá velkou vestavěnou skříň), obývací pokoj je směrem do ulice.
Braník je vyhledávaná rezidenční čtvrť s výborným zázemím pro rodiny — v docházce jsou školky, školy, dětská hřiště, pošta, lékárna, menší obchody i supermarket, kavárny i restaurace. Tramvajová zastávka Nádraží Braník je cca 4 min pěšky, do centra (Karlovo náměstí) zhruba 17 minut. Výjimečná je možnost sportu a relaxu — podél Vltavy vede cyklostezka směrem na Vrané, trasy pro in-line brusle, běh, kolo, beach volejbal, workout zóny i loděnice.

Kolik to bude stát?
Měsíční nájemné 31.700 Kč + zálohy na služby ve výši 5.786,-Kč (teplo, voda, odpady, svoz odpadu apod.) + přepis odběru elektřiny na Nájemce. Kauce ve výši 50.000,-Kč, provize ve výši jednoho měsíčního nájmu.

Koho hledáme?
Slušné nájemce, ideální pro rodinu, nebo pár, případně spolubydlení.

Od kdy je byt volný?
Byt je volný k nastěhování ihned.

Rád vás pozvu na osobní prohlídku.

Parametry bytu

Cena
31 700 Kč /za měsíc
Aktualizováno
28. 11. 2025
Adresa
Na Mlejnku, Praha 4
ID
17828
Stavba
Cihlová
Stav objektu
Velmi dobrý
Plocha užitná
70 m2
Patro
1. z 4
Vlastnictví
Osobní
Plocha budovy
70 m2
Podlahová plocha
70 m2
Třída energetické náročnosti
G - Mimořádně nehospodárná
Elektřina
230V
Plyn
Plynovod
Odpad
Veřejná kanalizace
Komunikace
Asfaltová
Doprava
Vlak, Dálnice, Silnice, MHD, Autobus
Voda
Dálkový vodovod

Kontaktovat makléře

Realitní kancelář

Logo QARA, s.r.o.

QARA, s.r.o.

Šafaříkova 201/17, Praha

Chystáte se prodat nemovitost?
Pomůžeme Vám!

Máte zájem o tento byt?

Tímto, v souladu s nařízením Evropského parlamentu a Rady (EU) 2016/679, v platném znění, prohlašuji, že mi je alespoň 16 let a uděluji tak svůj souhlas se zpracováním zadaných údajů (jméno, telefon, e-mail, ip adresa) společnosti B3 Technology, s.r.o., IČ: 07330600, se sídlem Novostavby 126/23, 435 11 Lom (správce dat), za účelem předání dotazu z tohoto formuláře Vámi vybranému inzerentovi a zpětného kontaktování mé osoby. Osobní údaje bude správce zpracovávat manuálně i automaticky přímo prostřednictvím svých zaměstnanců. Informace předané tímto formulářem budou uloženy v databázi správce maximálně po dobu 10 let. Odvolání souhlasu s uložením a zpracováním poskytnutých dat lze e-mailem na info@videobydleni.cz. V případě podezření na neoprávněné použití Vámi poskytnutých údajů máte právo předat podnět k šetření Úřadu pro ochranu osobních údajů. Více informací
Chystáte se prodat nemovitost?
Pomůžeme Vám!

Inzerát si prohlédlo 8 lidí

Prodejce

Ondřej Petr

Ondřej Petr

Hlídací pes

Chcete dostávat emailem podobné nabídky pronájmu bytů 3+1 v Praze 4?

Podobné nemovitosti


Nevyhovuje Vám typ bytu? Podívejte se na jiné kategorie bytů.


Vybrané články z našeho blogu