Pronájem bytu 2+1, Praha - Letňany, Chlebovická, 61 m2 (ID: 4102134)

Chlebovická, Letňany - Praha 18

22 400 Kč /za měsíc Získejte výhodnou HYPOTÉKU

(vratná jistota, náklady na bydlení 6 155 Kč, poplatek za podnájem)

Prémioví partneři v Praze 9

Stěhovací služby

Výkup a prodej starého nábytku

Informace k bytu

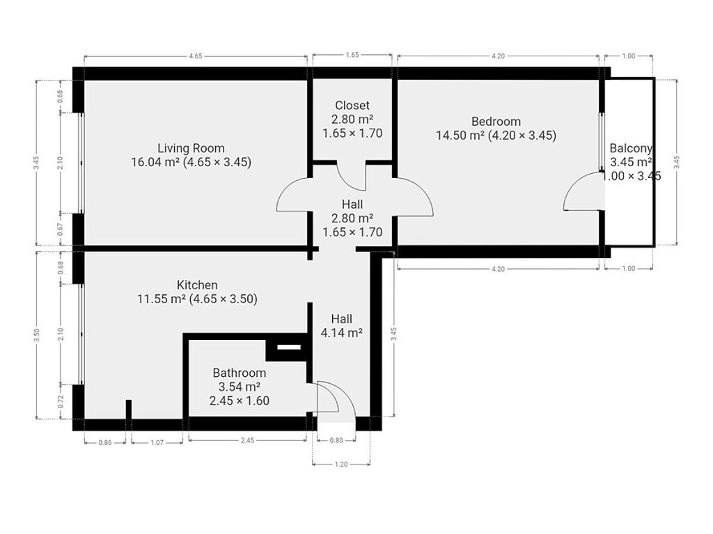
K dlouhodobému podnájmu nabízíme světlý byt o dispozici 2+1 v klidné rezidenční lokalitě Praha 18- Letňany. Byt o celkové výměře 61 m² se nachází v 8. patře udržovaného panelového domu s výtahem. K bytu náleží také balkon a praktický sklep.

Byt je nabízen částečně vybavený, což dává možnost doladit si interiér podle vlastního vkusu. Kuchyně je vybavena lednicí s mrazákem, elektrickou troubou, sporákem, digestoří a jídelním koutem. Obývací pokoj disponuje vhodným prostorem pro vybavení dle potřeb nájemníka. K dispozici je rovněž samostatný pokoj, který nejlépe poslouží jako ložnice. Pokoj disponuje přímým vstupem na balkon. Koupelna je vybavena sprchovým koutem, koupelnovou skříňkou, umyvadlem a toaletou. Součástí bytu je také praktická úložná místnost.

V okolí domu je kompletní občanská vybavenost – OC Letňany, obchod s potravinami, lékařská péče, pošta, školy a školky, restaurace. Pro volný čas je ideální Lesopark Letňany, vzdálený jen pár minut chůze. Výbornou dopravní dostupnost zajišťují blízké zastávky autobusů a také stanice metra C - Letňany.

Byt je volný k nastěhování ihned.

Energetická třída: G (průkaz nedodán).

Parametry bytu

Cena
22 400 Kč /za měsíc
Poznámka k ceně
vratná jistota, náklady na bydlení 6 155 Kč, poplatek za podnájem
Aktualizováno
14. 11. 2025
Adresa
Chlebovická, Letňany - Praha 18
ID
N6923
Stavba
Panelová
Stav objektu
Velmi dobrý
Plocha užitná
61 m2
Patro
8. z 8
Vybaveno
Částečně
Typ objektu
Patrový
Lokalita objektu
Klidná část obce
Vlastnictví
Osobní
Podlahová plocha
61 m2
Třída energetické náročnosti
G - Mimořádně nehospodárná
Elektřina
230V
Topení
Ústřední dálkové
Doprava
Silnice, MHD, Autobus
Balkon
Sklep
Výtah

Kontaktovat makléře

Máte zájem o tento byt?

Tímto, v souladu s nařízením Evropského parlamentu a Rady (EU) 2016/679, v platném znění, prohlašuji, že mi je alespoň 16 let a uděluji tak svůj souhlas se zpracováním zadaných údajů (jméno, telefon, e-mail, ip adresa) společnosti B3 Technology, s.r.o., IČ: 07330600, se sídlem Novostavby 126/23, 435 11 Lom (správce dat), za účelem předání dotazu z tohoto formuláře Vámi vybranému inzerentovi a zpětného kontaktování mé osoby. Osobní údaje bude správce zpracovávat manuálně i automaticky přímo prostřednictvím svých zaměstnanců. Informace předané tímto formulářem budou uloženy v databázi správce maximálně po dobu 10 let. Odvolání souhlasu s uložením a zpracováním poskytnutých dat lze e-mailem na info@videobydleni.cz. V případě podezření na neoprávněné použití Vámi poskytnutých údajů máte právo předat podnět k šetření Úřadu pro ochranu osobních údajů. Více informací
Chystáte se prodat nemovitost?
Pomůžeme Vám!

Inzerát si prohlédlo 10 lidí

Prodejce

Miloslava Kačerová

Miloslava Kačerová

Hlídací pes

Chcete dostávat emailem podobné nabídky pronájmu bytů 2+1 v Praze 9?

Podobné nemovitosti


Nevyhovuje Vám typ bytu? Podívejte se na jiné kategorie bytů.


Vybrané články z našeho blogu