Pronájem bytu 1+1, Hodonín, Brněnská, 43 m2 (ID: 4115243)

Brněnská, Hodonín

11 000 Kč /za měsíc Získejte výhodnou HYPOTÉKU
Prémioví partneři v Hodoníně

Informace k bytu

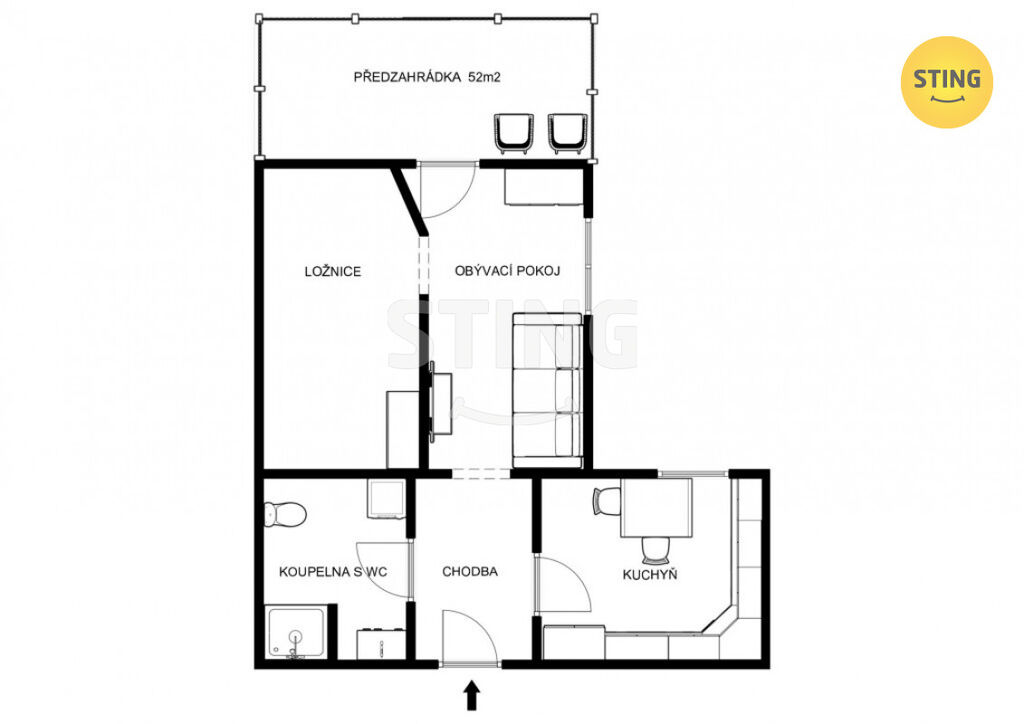
Nabízíme k pronájmu příjemný byt o velikosti 43 m² s prostornou předzahrádkou 52 m². Byt se nachází v přízemí bytového domu v klidné části Hodonína, v areálu bývalých kasáren. Výhodou je bezbariérový přístup. K dispozici bude od 1. 1. 2026.

Byt se nabízí částečně vybavený:
Kuchyně: jídelní stůl se židlemi, nová kuchyňská linka, varná deska, trouba, mikrovlnná trouba, myčka, lednice
Koupelna: pračka se sušičkou
Obývací část: televize, menší pohovka, šatní skříň, drobný nábytek
Obývací prostor je rozdělen přepážkou, díky které vzniká útulná spací zóna (bez vybavení)
Předzahrádka: vstup přímo z obývacího pokoje, zahradní stůl, židle a velký slunečník.

Velmi dobrá lokalita, blízko jsou potraviny, pekárna, školka i zastávka MHD. Dostatek parkovacích míst.

Podmínky pronájmu
Nájemné: 11 000 Kč / měsíc + inkaso
Vratná kauce: 3× nájem
Provize realitní kanceláři
Byt je vhodný pro jednotlivce nebo pár
Preferujeme seriózní a spolehlivé nájemníky

Pro více informací nás kontaktujte. Prohlídky budou plánovány na měsíc prosinec.

Parametry bytu

Cena
11 000 Kč /za měsíc
Aktualizováno
28. 11. 2025
Adresa
Brněnská, Hodonín
ID
134004
Stavba
Cihlová
Stav objektu
Dobrý
Plocha užitná
43 m2
Patro
1. z 4
Lokalita objektu
Klidná část obce
Vlastnictví
Družstevní
Podlahová plocha
43 m2
Elektřina
230V
Odpad
Veřejná kanalizace
Topení
Ústřední dálkové
Doprava
MHD
Sklep
Terasa
Bezbarierový přístup
Převod do OV
Parkování

Kontaktovat makléře

Máte zájem o tento byt?

Tímto, v souladu s nařízením Evropského parlamentu a Rady (EU) 2016/679, v platném znění, prohlašuji, že mi je alespoň 16 let a uděluji tak svůj souhlas se zpracováním zadaných údajů (jméno, telefon, e-mail, ip adresa) společnosti B3 Technology, s.r.o., IČ: 07330600, se sídlem Novostavby 126/23, 435 11 Lom (správce dat), za účelem předání dotazu z tohoto formuláře Vámi vybranému inzerentovi a zpětného kontaktování mé osoby. Osobní údaje bude správce zpracovávat manuálně i automaticky přímo prostřednictvím svých zaměstnanců. Informace předané tímto formulářem budou uloženy v databázi správce maximálně po dobu 10 let. Odvolání souhlasu s uložením a zpracováním poskytnutých dat lze e-mailem na info@videobydleni.cz. V případě podezření na neoprávněné použití Vámi poskytnutých údajů máte právo předat podnět k šetření Úřadu pro ochranu osobních údajů. Více informací
Chystáte se prodat nemovitost?
Pomůžeme Vám!

Inzerát si prohlédlo 37 lidí

Prodejce

Tomáš Veselý

Tomáš Veselý

Hlídací pes

Chcete dostávat emailem podobné nabídky pronájmu bytů 1+1 v Hodoníně?

Podobné nemovitosti


Nevyhovuje Vám typ bytu? Podívejte se na jiné kategorie bytů.


Vybrané články z našeho blogu