Prodej bytu 2+kk, Hluboká nad Vltavou, 54 m2 (ID: 4122862)

Hluboká nad Vltavou

Prémioví partneři v Hluboké nad Vltavou

Informace k bytu

Bytu 2kk v prémiovém komunitním bydlení pro seniory v projektu SENIOR RESORT HLUBOKÁ

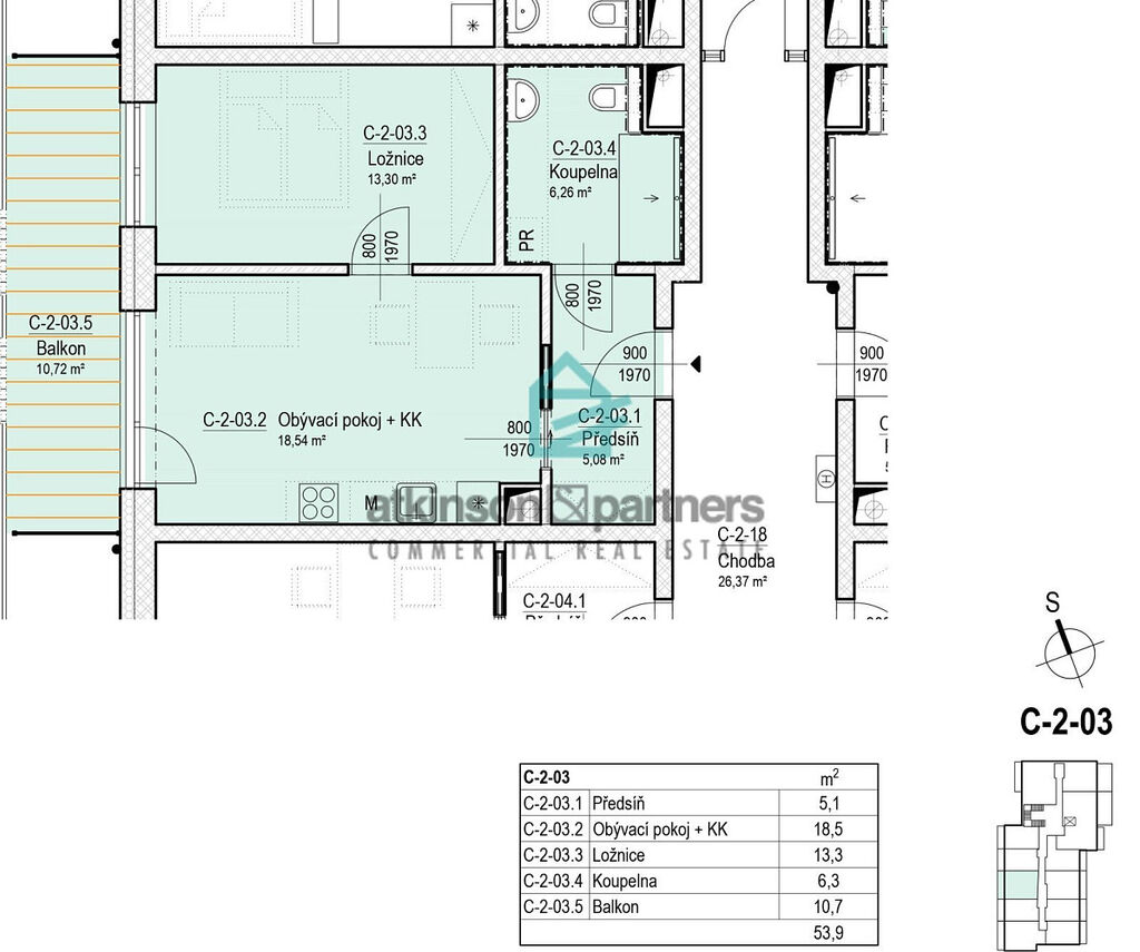
Nabízíme k prodeji bytovou jednotku číslo C-2-08 v prémiovém komunitním bydlení pro seniory v projektu SENIOR RESORT HLUBOKÁ, jež je navržen podle aktuálních trendů moderního bydlení s důrazem na kvalitu a dlouhodobou udržitelnost budov.
Jedná se o praktický byt o dispozici 2+kk nacházející se ve 2. NP budovy C. Stejně tak jako všechny ostatní bytové jednotky je i tato koncipována jako bezbariérová. Její podlahová plocha činí 43,2 m² a disponuje balkónem o výměře 10,7 m².
Orientace bytu je na východ.

Bytovou jednotku tvoří: předsíň o výměře 5,1 m², obývací pokoj s kuchyňským koutem o velikosti 18,2 m², ložnice o velikosti 13,3 m² a koupelna s toaletou o výměře 6,3 m². Dle přání lze dokoupit samostatnou sklepní kóji na patře (2,9 - 4,4 m²).

Budova C je vybavena prostorným výtahem.

Byt bude předán zkolaudovaný, včetně sanitárního vybavení, obkladů a finálního pokrytí podlah.

Součástí celého resortu jsou parkovací stání, která lze dle přání dokoupit.
Obyvatelé resortu mohou dle potřeby také využívat společné prostory jednotlivých budov (tj. např. společenské místnosti, prostory pro zdravotnické a sociální služby, sklady pro odpad apod. )

SENIOR RESORT HLUBOKÁ se nachází v romantickém jihočeském městě Hluboká nad Vltavou. Základem naší projektové vize je kombinace vysokého standardu seniorského bydlení v příjemném a klidném prostředí s možností využívat zdravotnický servis, služby i nabídku volnočasových aktivit, to vše s pomocí dosažitelného financování formou družstevního vlastnictví.
(Družstevní vlastnictví představuje nejdostupnější řešení pořízení vlastního bydlení bez hypotéky a dokládání příjmů. Při nákupu bytové jednotky stačí postupně složit pouze 30% ceny bytu a zbytek doplácet měsíčními splátkami družstvu. )

Výhodou projektu SENIOR RESORT HLUBOKÁ je ověřený formát družstevního bydlení představující cenově dostupné řešení pro širokou veřejnost a nabízející také skvělou investici do budoucnosti.

Kontaktujte nás, rádi si s Vámi domluvíme osobní schůzku. Jsme tu pro Vás.

Parametry bytu

Cena
5 340 500 Kč Spočítat hypotéku
Aktualizováno
5. 12. 2025
Adresa
Hluboká nad Vltavou
ID
00822
Stavba
Cihlová
Stav objektu
Novostavba
Plocha užitná
54 m2
Vlastnictví
Družstevní
Třída energetické náročnosti
B - Velmi úsporná

Kontaktovat makléře

Máte zájem o tento byt?

Tímto, v souladu s nařízením Evropského parlamentu a Rady (EU) 2016/679, v platném znění, prohlašuji, že mi je alespoň 16 let a uděluji tak svůj souhlas se zpracováním zadaných údajů (jméno, telefon, e-mail, ip adresa) společnosti B3 Technology, s.r.o., IČ: 07330600, se sídlem Novostavby 126/23, 435 11 Lom (správce dat), za účelem předání dotazu z tohoto formuláře Vámi vybranému inzerentovi a zpětného kontaktování mé osoby. Osobní údaje bude správce zpracovávat manuálně i automaticky přímo prostřednictvím svých zaměstnanců. Informace předané tímto formulářem budou uloženy v databázi správce maximálně po dobu 10 let. Odvolání souhlasu s uložením a zpracováním poskytnutých dat lze e-mailem na info@videobydleni.cz. V případě podezření na neoprávněné použití Vámi poskytnutých údajů máte právo předat podnět k šetření Úřadu pro ochranu osobních údajů. Více informací
Chystáte se prodat nemovitost?
Pomůžeme Vám!

Inzerát si prohlédlo 1 lidí

Prodejce

Mgr. Monika Němcová, MBA

Mgr. Monika Němcová, MBA

Hlídací pes

Chcete dostávat emailem podobné nabídky prodeje bytů 2+kk v Hluboké nad Vltavou?

Podobné nemovitosti


Nevyhovuje Vám typ bytu? Podívejte se na jiné kategorie bytů.


Vybrané články z našeho blogu